Bauplanung
Neubau einer Wohnanlage
6 Reihenhäuser 10 WE 685 m² Wohnfläche
Energieberatung - Planung - Vergabe - Bauleitung
Neubau 4 Reihenhäuser
ca. 665 m² Wohnfläche
Energieberatung - Planung - Vergabe - Bauleitung
Neubau Wohnhäuser
3 WE mit Garagen und ca. 350 m² Wohnfläche
Energieberatung - Planung - Vergabe - Bauleitung
Neubau MFH mit Tiefgarage
16 WE mit Tiefgarage
ca. 1500 m² Wohn- und Nutzfläche
Planung und Bauleitung-Rohbau
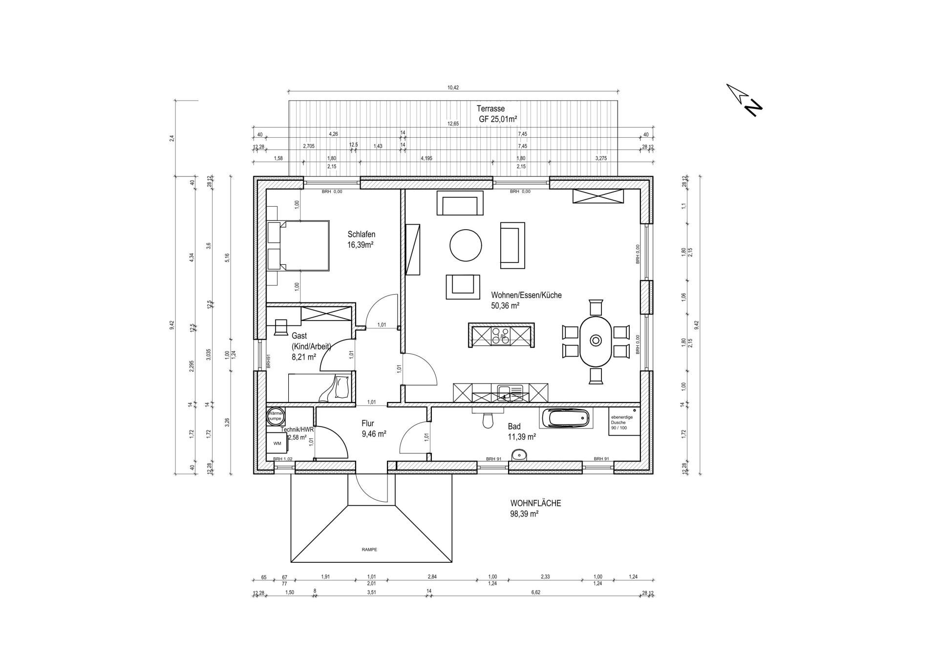
Neubau EFH auf Schraubfundamenten
Neubau Einfamilienhaus KfW 40 NH
ca. 130 m² Wohnfläche
Planung-Energieberatung-Ausführungsplanung-Bauleitung
Neubau Wohn- und Bürogebäude
Planung eines Wohn- und Bürogebäudes
ca. 230 m² Wohn- und Nutzfläche
Energieberatung-Planung
Neubau Wohnhaus
Planung eines Wohnhauses
ca. 160 m² Wohnfläche
Energieberatung-Planung
Neubau Doppelhaus
Neubauplanung eines Doppelhauses
ca. 310 m² Wohnfläche
Energieberatung-Planung
Neubau Wohnanlage
Neubauplanung von 9 Reihenhäuser, 13 Wohnungen und Garagen
ca. 1030 m² Wohnfläche
Energieberatung-Planung-Vergabe-Bauleitung
Sanierung Reihenhausanlage
Planung Umbau und Sanierung einer Reihenhausanlage mit Außenanlage
ca. 490 m² Wohnfläche
Energieberatung-Planung-Vergabe-Bauleitung
Neubau Wohnanlage
Neubauplanung einer Wohnanlage mit 8 Energieeffizienten Doppelhaushälften und Garagen
ca. 1008 m² Wohnfläche
Energieberatung-Planung-Vergabe-Bauleitung
Neubau Wohnhaus
Neubauplanung eines Zweifamilien Wohnhauses
ca. 230 m² Wohnfläche
Energieberatung-Planung-Vergabe-Bauleitung
Neubau Garagenanlage
Planung einer Garagenanlage
15 Stellplätze
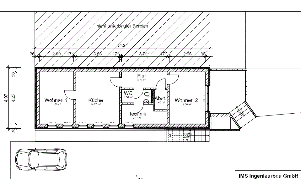
Umbau Güterhalle
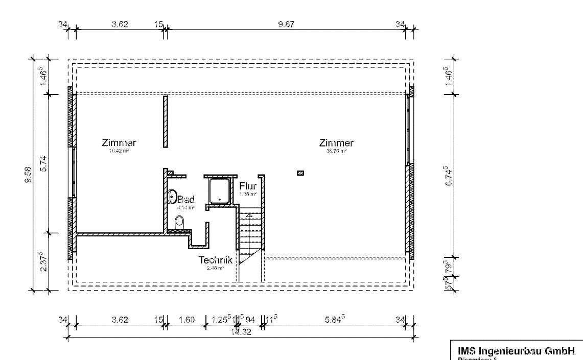
Sanierung Einfamilienhaus
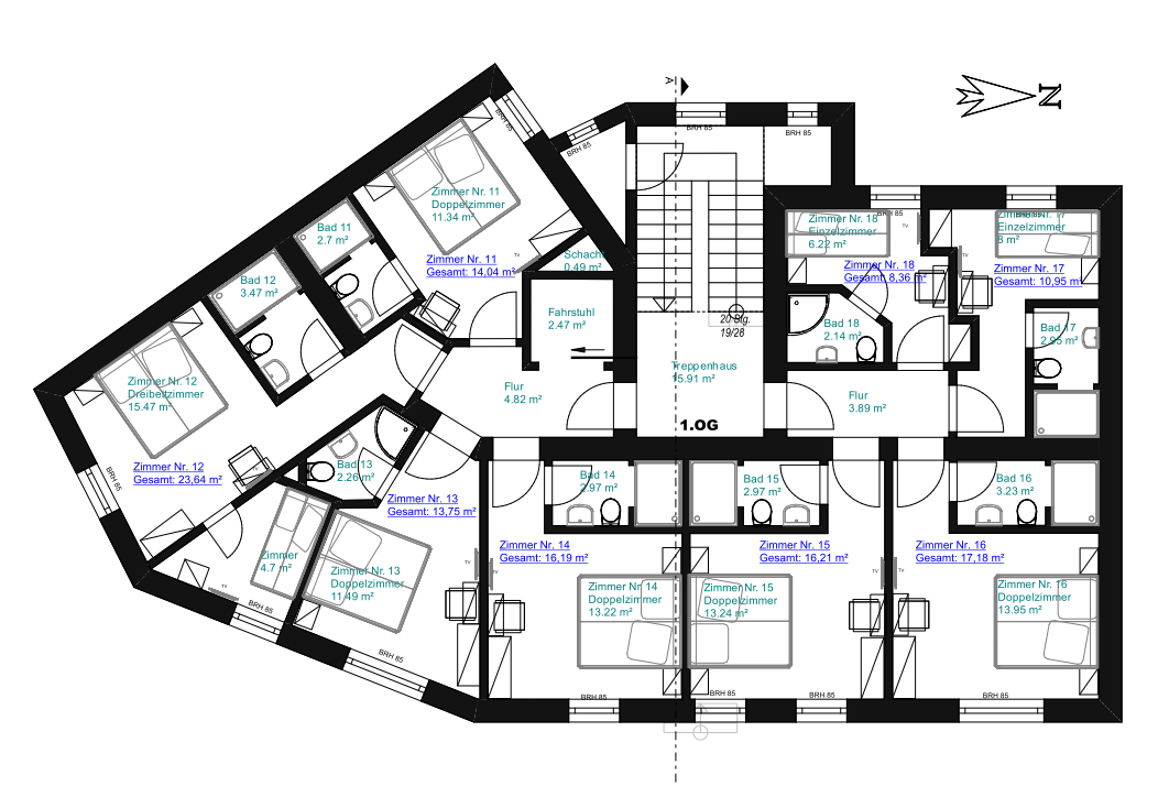
Planung eines Innenstadthotels
Neubau Zweifamilienhaus
Umbau eines ehemaligen Telekomgebäudes
ca. 110 m²
























